PROMOTOR

INCASOL

AUTORES

4RQ arquitectura + MBM Arquitectes

FOTOGRAFÍA

Adrià Goula / Bea Schulze

Categoría
Vivienda

Promoción de 24 viviendas VPO en Igualada

El proyecto se inscribe en un solar con unas condiciones urbanísticas rígidas, heredadas de un planeamiento que ya no responde plenamente a las actuales necesidades de vivienda, espacio público y sostenibilidad. Ante este escenario, la propuesta opta por reinterpretar los límites normativos para construir un edificio capaz de actuar como infraestructura urbana y social.

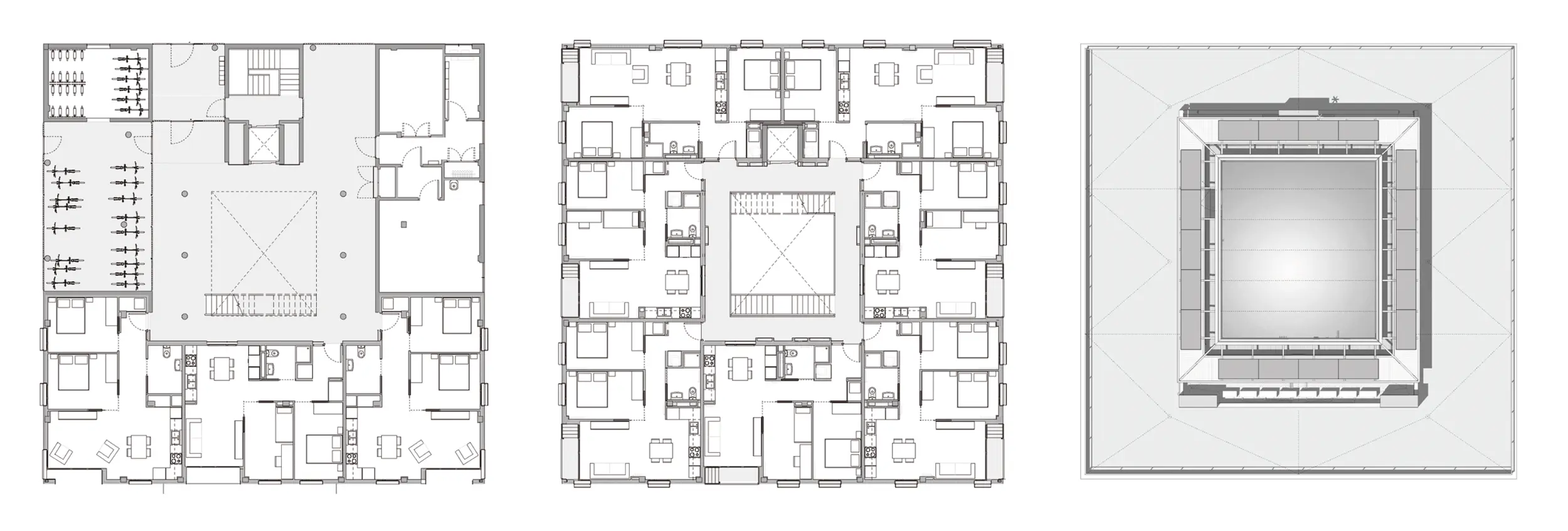
El edificio completa un conjunto de vivienda social existente y se convierte en una pieza de transición entre el tejido urbano y el parque adyacente. Esta condición intermedia se resuelve mediante un patio central abierto y ventilado que permite que el espacio público penetre en el edificio, prolongando los recorridos de la calle hasta la cubierta. La planta baja se libera casi por completo para reforzar esta continuidad, transformándose en un espacio comunitario abierto en el barrio.

Este nivel acoge los accesos, servicios colectivos, instalaciones y aparcamiento de bicicletas de gran capacidad, entendido no como un anexo funcional sino como una infraestructura clave de movilidad sostenible. En un contexto periférico como el barrio de Les Comes, separado del centro de Igualada por una franja industrial, la bicicleta se convierte en una herramienta esencial de conexión cotidiana y cohesión urbana.

La liberación de la planta baja obliga a reformular la organización tipológica de las viviendas. El proyecto pasa de seis a siete viviendas por planta tipo, apostando por unidades más compactas pero espacialmente más flexibles. La destrucción de la esquina interior permite diluir los límites entre aposentos, generando una mayor amplitud perceptiva y evitando soluciones excesivamente compartimentadas. Esta estrategia busca garantizar calidad espacial y adaptabilidad en viviendas de dimensiones ajustadas.

El lenguaje arquitectónico dialoga con el pasado industrial de la ciudad a través del uso de metalisterías continuas, sistemas industrializados y grandes piezas prefabricadas, como la cubierta fotovoltaica o la estructura del atrio. Este carácter industrial se contrapone a la presencia de materiales cálidos y reciclados, como los tableros de OSB, especialmente en los espacios colectivos, reforzando la dimensión doméstica del conjunto.

La sostenibilidad se aborda de forma transversal, priorizando la reducción de la demanda energética mediante una envolvente altamente eficiente, ventilación natural cruzada y sistemas de ventilación controlada. El edificio prescinde por completo de combustibles fósiles e incorpora una pérgola fotovoltaica que cubre la totalidad del consumo comunitario. Además, se despliegan estrategias de gestión eficiente del agua, reutilización de aguas grises, pavimentos permeables y sistemas constructivos en seco, pensados ​​para facilitar el desmontaje y la reutilización futura.

El proyecto entiende la vivienda social no sólo como una suma de unidades residenciales, sino como una oportunidad para construir espacio público, comunidad y ciudad.