AUTORES

4RQ Arquitectura + MBM Arquitectes

Categoría
Vivienda

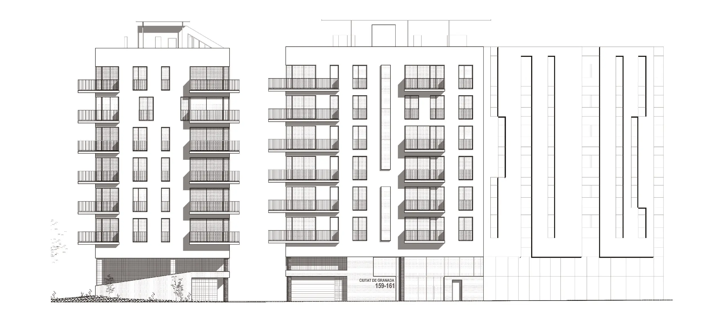
Edificio residencial de alquiler en Barcelona

El proyecto se desarrolla en el distrito de Sant Martí de Barcelona, ​​en el ámbito del PERI Diagonal/Poblenou (Z2 Unidad de Actuación 1), muy cerca del futuro Parque de las Glòries. La parcela, situada en C/ Ciudad de Granada 159-161, se ubica en la parte noreste de la manzana delimitada por av. Diagonal, Ciudad de Granada, Bolivia y Badajoz, en un entorno de gran transformación urbana compartido con referentes como la Torre Glòries y el conjunto de edificios proyectado por Juli Capella, del que el nuevo volumen forma parte y completa su ordenación.

El solar, de 297,38 m² (20,95 x 14,20 m), se ubica sobre la cubierta de un aparcamiento existente de tres plantas soterradas y comparte medianera con el edificio de viviendas vecina. La presencia de la rampa de acceso al parking y las condiciones estructurales preexistentes han condicionado el proyecto, que busca una integración formal y compositiva con el conjunto existente, manteniendo un lenguaje sobrio y coherente.

El programa contempla un edificio plurifamiliar de PB+6 con 23 viviendas destinadas a alquiler, mayoritariamente de dos habitaciones dobles (cuatro por planta), incorporando a la quinta planta viviendas de tres habitaciones para optimizar la densidad y permitir su funcionamiento con un único ascensor para las plantas residenciales. El edificio dispone de tres fachadas y tres orientaciones (NE, SO y SE), favoreciendo la calidad ambiental de las viviendas.

En planta baja se organiza el acceso principal desde la calle Ciudad de Granada, con vestíbulo, espacios comunitarios y centralizaciones. En la fachada interior de manzana se ubica un local comercial independiente. El proyecto resuelve la conexión con el aparcamiento existente mediante dos núcleos de comunicación diferenciados -uno para el uso residencial y otro vinculado al parking-, garantizando una distribución eficiente y el cumplimiento normativo.