AUTORES

4RQ arquitectura + MBM Arquitectes

Categoría
Terciario

Nueva comisaría de policía local en Blanes

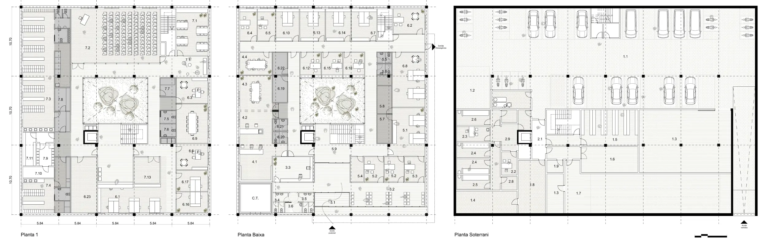
La propuesta presentada se plantea desde la voluntad de mantener el esquema organizativo del anteproyecto existente, entendiendo que ha sido consensuado con promotor y futuros usuarios, y la necesidad de una rápida ejecución intentando minimizar nuevos trámites administrativos que pudieran surgir de una propuesta nueva. Se plantean, pues las mínimas modificaciones/adaptaciones con la intención de:

1. Dar respuesta a los requerimientos técnicos adelantándonos a las necesidades que surgen en el transcurso de un proyecto ejecutivo. En este sentido, ha sido necesario analizar con profundidad la tipología estructural y los sistemas de instalaciones, así como diversos aspectos derivados del cumplimiento de las normativas técnicas autonómicas y estatales.

2. Establecer una estrategia de actuación arquitectónica que resuelva todos los puntos potencialmente mejorables desde el punto de vista funcional, organizativo y espacial.

3. Introducir medidas de control ambiental eficientes para garantizar un máximo confort para los usuarios y reducir la demanda energética con el objetivo de conseguir un edificio nZEB.

Se reajusta toda la planta para establecer un orden arquitectónico y espacial que permita manifestarse en la fachada y organizar mejor los espacios interiores. Se establecen 3 crujías moduladas con grandes luces para los forjados y pequeñas luces para los pórticos favoreciendo la disposición interior de los espacios y la configuración del aparcamiento en planta sótano. Esta modulación responde además a la optimización del sistema prefabricado que se propone. Esta estructura, que pasa a formar parte de la composición de la fachada, se integra en el grosor de fachada permitiendo una mayor flexibilidad a la hora de disponer los espacios de trabajo y organizar el programa funcional.

Se reajustan las disposiciones de las piezas de servicios encaminadas a actuar de núcleos de distribución de instalaciones y disponiéndolas en planta en las zonas oscuras para liberar fachadas y patios. Todas las circulaciones s

Los espacios exteriores se organizan con la intención de minimizar los elementos de contención de tierras y liberar espacio verde para las franjas perimetrales consiguiendo una circulación más fluida y aseada para el aparcamiento.

La propuesta quiere conseguir que el propio sistema constructivo se convierta en el lenguaje arquitectónico a través de su orden y materialidad. Por esta razón, la propuesta está enfocada a soluciones constructivas expresivas y potentes desde el punto de vista formal sin dejar la racionalidad y la simplicidad como ejes del proyecto.

Las soluciones utilizadas permiten disposiciones amplias con espacios luminosos y generosos para una mejor calidad de vida de sus usuarios.

El resto de soluciones técnicas están enfocadas a garantizar el máximo confort a la vez que contribuyen a mejorar la eficiencia energética del edificio.