Categoría
Terciario

Nuevo edificio de vestuarios y almacén en la ZEM Jaume Tubau de Sant Cugat del Vallès

La Zona deportiva Municipal Jaume Tubau, creada en 2001, cuenta con diferentes espacios deportivos donde se puede hacer deporte, así como un bar/cafetería. El Ayuntamiento de Sant Cugat del Vallès prevé la ampliación de las instalaciones existentes con la construcción de unos nuevos vestuarios, una sala polivalente, salas auxiliares de instalaciones y almacén que se situarán en la explanada entre las pistas descubiertas de hockey y baloncesto y el cuerpo edificado de los vestuarios de los árbitros.

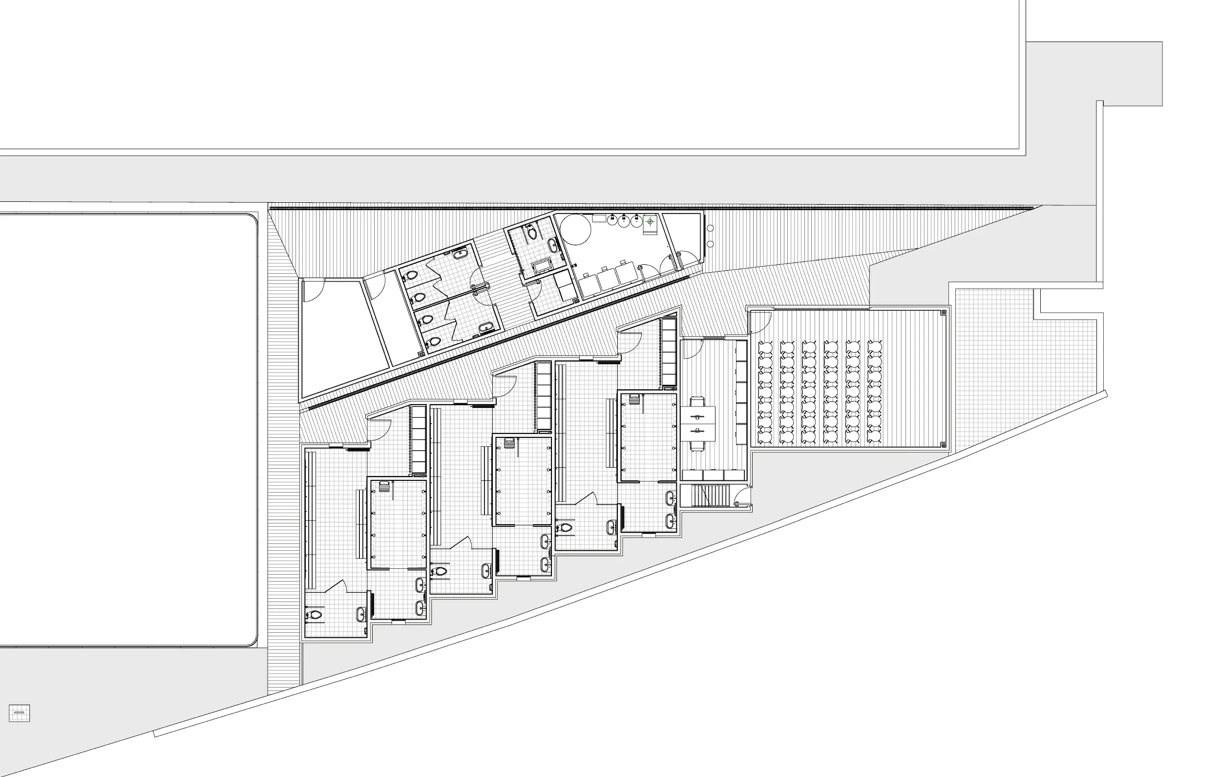
La implantación del edificio en el área de actuación es bastante ajustada a nivel de ocupación. Aunque en principio se permite la edificación a dos plantas por razones de funcionalidad y accesibilidad, se plantea todo el programa a excepción de pequeños espacios de instalaciones en una sola planta a nivel de acceso. Las prendas más condicionantes a nivel de superficie son los 3 de vestuarios y la sala polivalente que además de ser las más grandes son las que requieren unas mejores condiciones de ubicación y acceso. Se disponen pues estas piezas de forma retranqueada siguiendo el trazado del muro que linda con la calle Ventura Gassol y generando un espacio triangular libre en la esquina de la vía de paso y el campo grande donde se ubican las piezas de servicio, almacenes e instalaciones. Entre estos cuerpos se genera un pasillo exterior de acceso a las prendas de vestuarios.

La masividad de la edificación encuentra su contrapunto en la ligereza de los elementos metálicos y todo un conjunto de instalaciones vistas que ayudan a desmaterializar las sólidas pasarelas de hormigón que unen los 2 bloques. Las instalaciones vistas toman un protagonismo frente a la sencillez de la arquitectura confiriéndole al edificio un aspecto tecnológico propio de su concepción.

Ante la gran demanda de agua caliente se hace imprescindible estudiar sistemas que optimicen el consumo energético así como el reaprovechamiento y gestión del agua de las duchas y las aguas grises en general. Gran parte de la demanda de agua caliente se cubre con 9 placas solares de alto rendimiento equipadas con un sistema de autovaciado que permite evitar los sobrecalentamientos en verano sin disipadores de aire con el consumo que conllevan y minimizar las operaciones de mantenimiento. El sistema de apoyo es con una caldera de condensación a gas de alta eficiencia que da servicio también a la calefacción de los vestuarios.

La climatización de la sala polivalente es mediante una bomba de calor con caudal variable. Todo el sistema de ventilación dispone de recuperador de calor de alta eficiencia.

El edificio dispone de un depósito de depuración de aguas grises para evacuación de los inodoros con fluxor y además dispone de recogida de aguas pluviales que se gestionan en una planta enterrada.