Categoría
Terciario

Centro de Interpretación del Río Ebro en Mora d’Ebre

El proyecto define la rehabilitación y ampliación de un edificio municipal existente -conocido como «la tomatera»- para acoger un centro de interpretación dedicado al río Ebro, situado en Móra d’Ebre, junto al camino de Subarrec, la Plaza de Toros y la zona fluvial de la Aubadera.

Implantación y relación con el entorno

El edificio se ubica al pie del risco bajo el Hospital Comarcal, en un punto estratégico entre el tejido urbano y el espacio fluvial. La intervención refuerza esta posición, vinculando al centro con las actuaciones de restauración del bosque de ribera del tramo catalán del río.

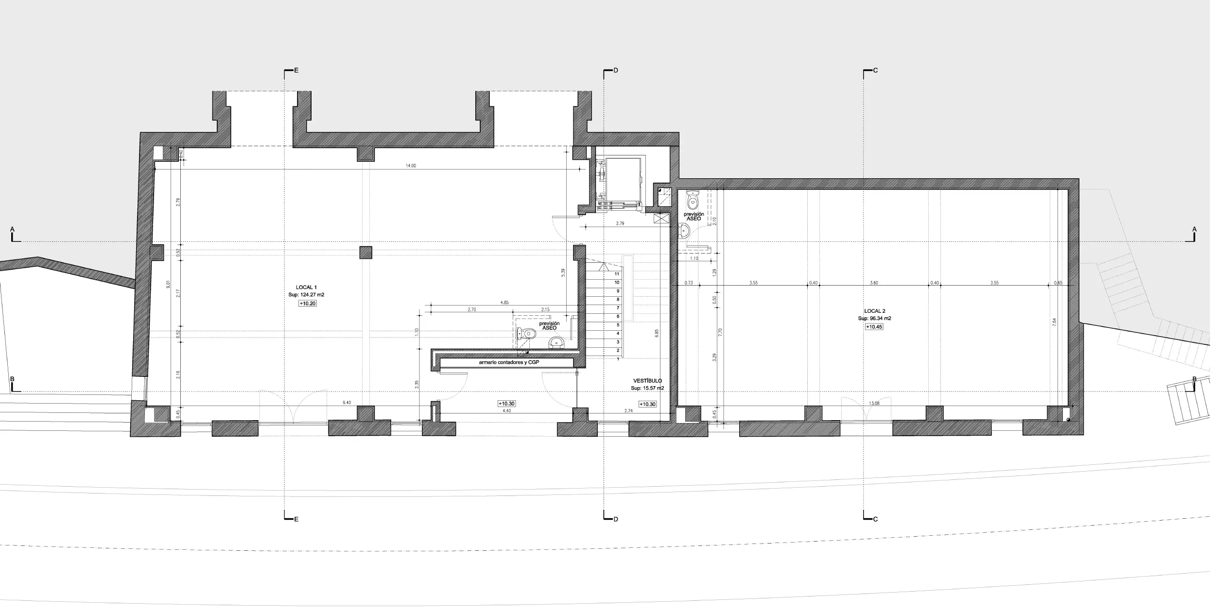
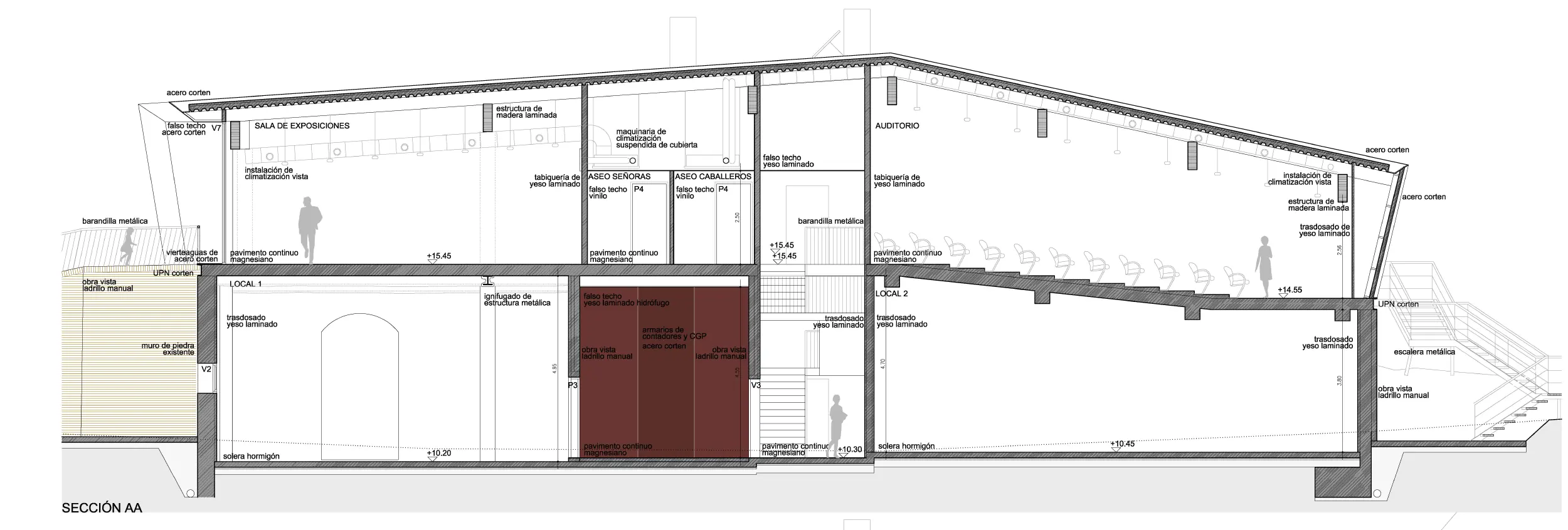
Rehabilitación del edificio existente

La actuación se desarrolla sobre dos edificaciones adosadas con muros perimetrales de piedra y argamasa de 60 cm de grosor. Se mantiene la planta baja como almacén municipal, pero se ejecutan mejoras para adecuarla al CTE:

  • Nueva solera con machihembrado de grava y aislamiento térmico (DB-HE).
  • Trasdosado interior de fachadas con aislamiento térmico.
  • Construcción de una acera perimetral con desvío de la calzada adyacente.

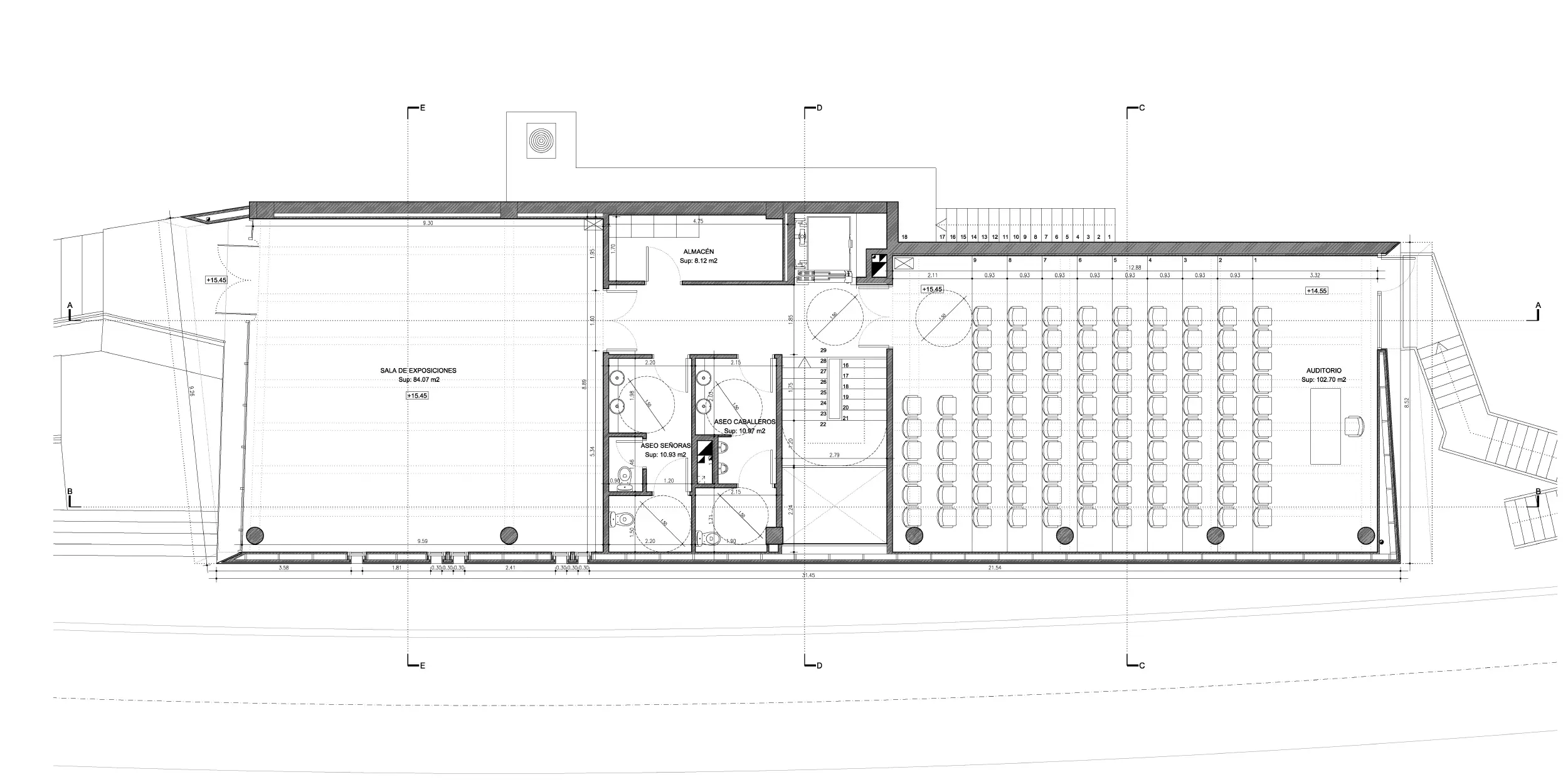
La primera planta acoge íntegramente el centro de interpretación, evitando riesgos de inundabilidad.

Programa funcional

El centro incluye:

  • Auditorio para 102 personas con pantalla para proyecciones.
  • Sala de exposiciones.
  • Pequeño almacén.
  • Servicios públicos.

Estrategia formal y material

El proyecto establece un diálogo entre preexistencia y obra nueva, propio de una intervención en un edificio de interés histórico-cultural.

  • Restitución: uso de ladrillo manual para recuperar partes degradadas, en coherencia con sistemas tradicionales.
  • Remonta contemporánea: incorporación de una nueva volumetría en acero corten para alojar el centro de interpretación, diferenciando claramente los nuevos usos y el lenguaje arquitectónico respecto al edificio original.

Esta estrategia permite poner en valor la estructura existente y, al mismo tiempo, dotar al conjunto de una identidad contemporánea vinculada al paisaje fluvial ya la memoria industrial del lugar.