Categoría
Terciario

Centro Cívico “Sant Roc” en Sta Coloma de Cervelló

Adecuación al entorno y accesos

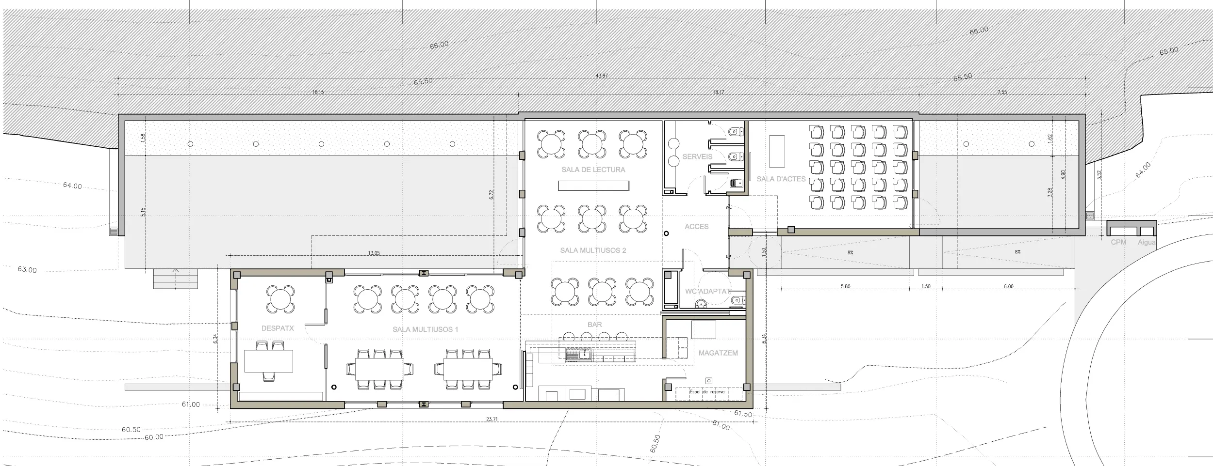
El edificio, de planta única y cubierta plana, se implanta sobre un camino forestal y queda parcialmente semiempotrado en el terreno para adaptarse a la fuerte pendiente existente. La disposición en dos volúmenes lineales desplazados longitudinalmente permite generar, por un lado, un espacio de acceso desde la calle y, por otro, un patio posterior delimitado por el muro de contención de tierras.

El cuerpo norte dispone de fachada sur (separada 6,80 m del muro), fachada este (despacho), fachada oeste (almacén como espacio amortiguador térmico) y fachada norte confrontada con el camino forestal. El cuerpo sur limita con el muro de contención en la fachada sur (sin aberturas), tiene fachada este en el patio interior, fachada oeste en un patio hundido que ilumina y ventila el salón de actos, y fachada norte cerrada.

Criterios funcionales y compositivos

La implantación sigue las curvas de nivel para minimizar el impacto ambiental y favorecer la integración paisajística en un entorno forestal. Las fachadas se resuelven con enlucido en tonalidades propias del terreno. La fachada norte, la más visible desde la carretera, se trata con gran opacidad y una imagen monolítica, y se dispone con un voladizo de un metro para reducir el impacto visual en la pendiente.

La organización interior se articula a través de un porche de acceso que actúa como eje vertebrador y se prolonga hacia el patio trasero, generando una continuidad visual y espacial hacia el bosque desde el mismo punto de entrada.

Criterios de sostenibilidad y eficiencia energética

El análisis bioclimático determina la necesidad de aportación solar para calefacción entre noviembre y abril y protección solar en el resto del año, con ventilación cruzada como estrategia principal de refrigeración en verano.

Para minimizar pérdidas térmicas, se reducen las aberturas en la fachada norte y se aprovecha la condición semiempotrada del edificio para mejorar el comportamiento térmico global. Aunque la presencia de pinos reduce más de un 50% la capta