FOTOGRAFÍA

Dhub, Albert Canbalejo / 4RQ

Categoría
Terciario

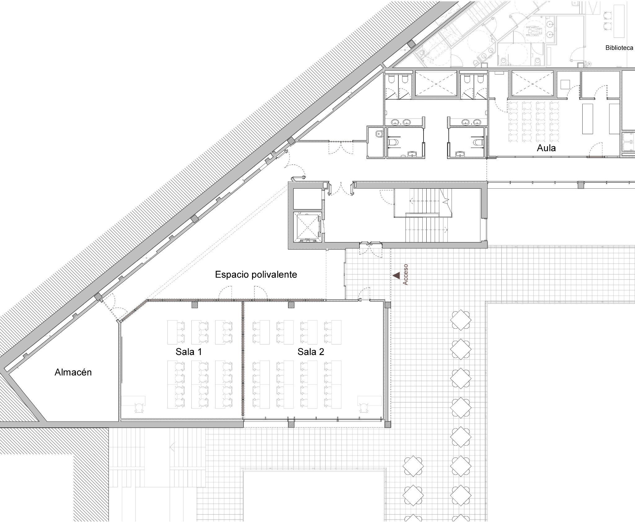
Espacio CUB del museo Disseny Hub Barcelona (DHub)

El Espai CUB es la transformación de un espacio residual del Museo del Diseño de Barcelona en un nuevo entorno dedicado a la creatividad y la innovación digital, integrado dentro del Disseny Hub Barcelona. El proyecto recupera unos antiguos espacios semienterrados y los convierte en una infraestructura flexible, preparada para albergar actividades culturales, tecnológicas y formatos híbridos.

La intervención arquitectónica pone el foco en el techo como elemento principal, haciendo visibles las instalaciones y generando una identidad propia que articula el espacio. La incorporación de tabiquería móvil permite adaptar fácilmente las salas a usos diversos, como exposiciones, talleres, conferencias o reuniones, mientras que los materiales, como el pino, aportan calidad ambiental y calidez. El proyecto también integra criterios de sostenibilidad, con mejoras en el aislamiento, instalaciones eficientes y conexión a la red energética de Districlima.

Equipado con infraestructura digital avanzada, el Espai CUB amplía las capacidades del museo y refuerza el ecosistema cultural y tecnológico de Barcelona, ​​consolidando un nuevo espacio para la innovación, la participación y el desarrollo creativo.