PROMOTOR

INCASOL

AUTORS

4RQ arquitectura + MBM Arquitectes + SMF Arquitectos

Categoría
Vivienda

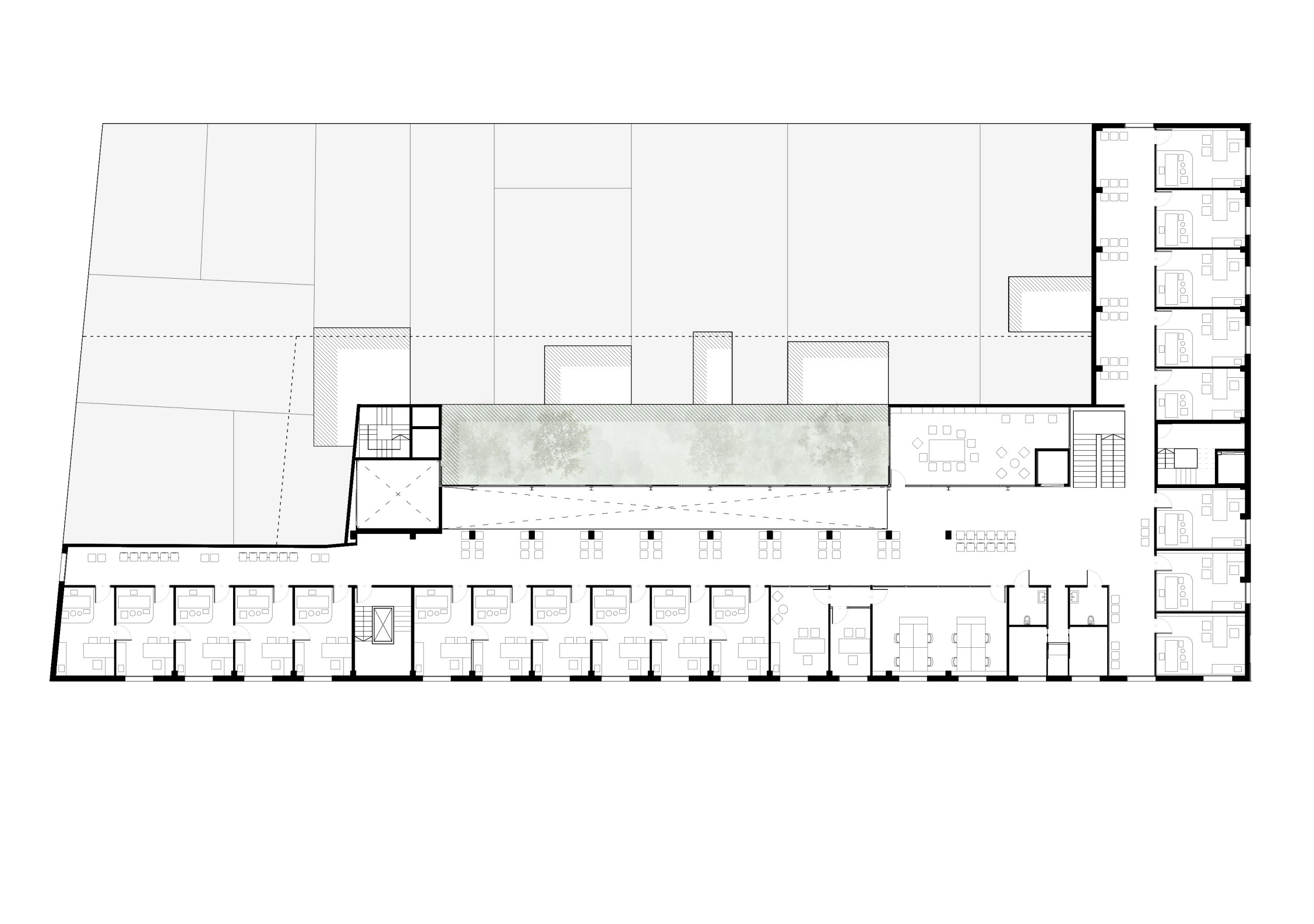
38 Viviendas sociales i CAP en el barrio del Carme en Reus

Concurso INCASOL. 3r premio

La propuesta plantea un nuevo conjunto de uso mixto en el casco antiguo de Reus que integra vivienda social, un Centro de Atención Primaria (CAP), aparcamiento subterráneo y espacio público, con el objetivo de generar una nueva centralidad urbana y reforzar la vida comunitaria.

El proyecto se concibe como una pieza compacta y permeable que dialoga con el entorno existente mediante una arquitectura contemporánea que reinterpreta la identidad del lugar. La planta baja tiene un papel clave en esta relación, con una plaza semicubierta que amplía la acera y se convierte en un espacio de encuentro vinculado al CAP y al sistema de espacios públicos.

Funcionalmente, el edificio se organiza con el aparcamiento en el sótano, el CAP en las plantas inferiores y las viviendas en las plantas superiores. Un patio interior lineal articula el conjunto, aportando luz natural, ventilación cruzada y calidad ambiental tanto a los espacios asistenciales como a los residenciales.

La propuesta apuesta por un sistema constructivo industrializado y eficiente, combinando estructura de hormigón en las plantas inferiores con madera contralaminada (CLT) en las viviendas, reduciendo el peso, los tiempos de ejecución y la huella de carbono.

Desde el punto de vista ambiental, el proyecto se basa en estrategias pasivas como la compacidad, la orientación y la ventilación natural, complementadas con instalaciones de alta eficiencia como la aerotermia y la ventilación con recuperación de calor. La cubierta incorpora una instalación fotovoltaica para autoconsumo, mientras que la gestión del agua y la vegetación contribuyen a mejorar el microclima y reducir el consumo de recursos.

El resultado es un edificio sostenible, flexible e integrado, que combina calidad arquitectónica, eficiencia energética y vocación social para contribuir a la regeneración urbana del entorno..