AUTORES

4RQ arquitectura + MBM Arquitectes

Categoría
Terciario

Centro de rehabilitación y ampliación del CAP de Falset

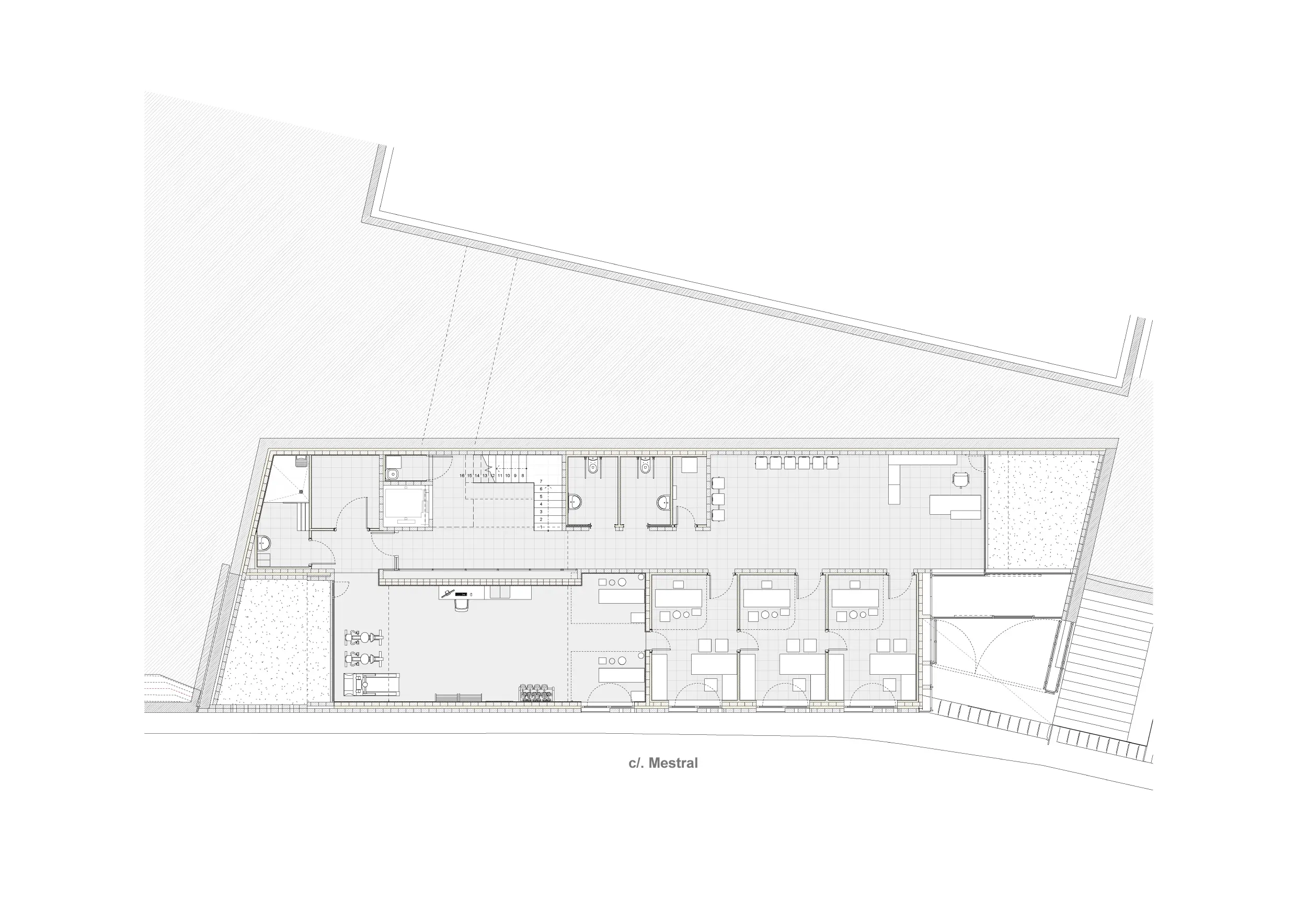
El proyecto amplía el CAP de Falset con un nuevo centro de rehabilitación conectado al edificio existente, dando servicio al municipio ya su entorno. Implantado en un solar en pendiente con acceso desde la calle Mestral, el nuevo volumen se presenta como una pieza lineal semienterrada que se integra en la topografía y en la continuidad urbana.

La organización se resuelve en dos crujías: la fachada a la calle acoge los espacios principales, como la sala de rehabilitación y la zona de espera, mientras que la parte enterrada concentra los espacios de apoyo. La incorporación de patios en los extremos mejora la iluminación natural, la ventilación y la calidad espacial, a la vez que resuelve la geometría del solar. La conexión con el CAP existente se produce mediante un núcleo central con escalera y ascensor, enlazado por una pasarela ligera que garantiza la continuidad funcional.

El conjunto se define con un volumen contundente de ladrillo manual, que refuerza su presencia urbana y aporta expresividad a través de celosías y distintos aparatos. La fachada de doble hoja con aislamiento de corcho mejora la eficiencia energética y el confort interior, mientras que el contraste entre la materialidad maciza del nuevo edificio y la ligereza de la pasarela establece un diálogo equilibrado con el edificio existente.