Categoría
Vivienda

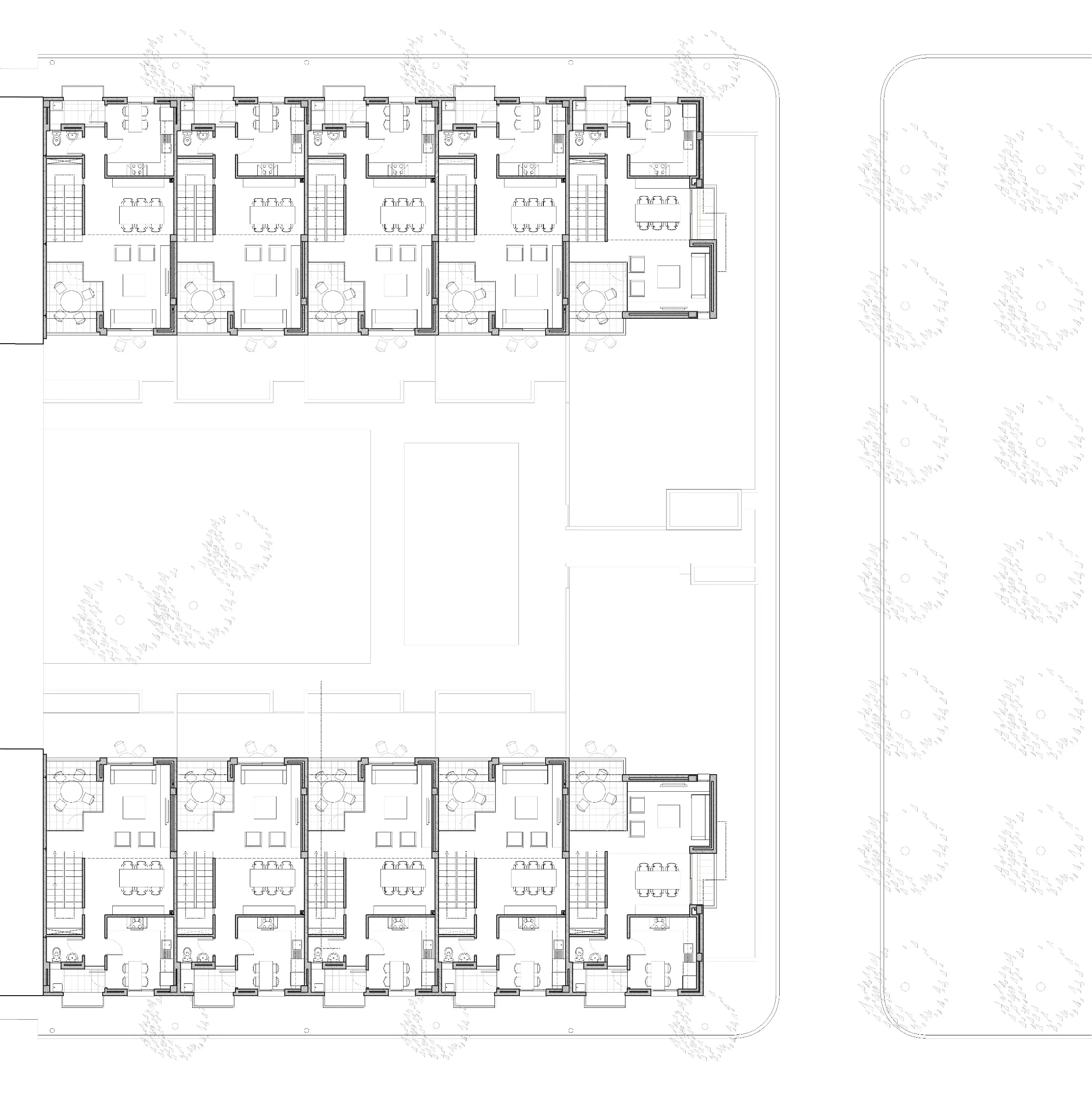
Proyecto de 10 viviendas en Pla del Penedès

El proyecto tiene por objeto la construcción de un conjunto plurifamiliar formado por dos bloques de 5 viviendas adosadas cada una, con dos plantas piso más garaje en planta baja, y una zona comunitaria con jardín y piscina.

La actuación se sitúa en una parcela de 1.274,85 m² ubicada entre las calles Miquel Servet, la Rambla y Camino Can Nadal, en el Pla del Penedès (Barcelona). El terreno es prácticamente plano y está calificado urbanísticamente como subzona 5b según la normativa vigente de la Unidad de Actuación 6.

Cada vivienda se distribuye en:

  • Planta baja: porche de acceso, recibidor, garaje-trastero y jardín privado.
  • Planta primera: salón-comedor, cocina, lavadero, aseo y terraza.
  • Planta segunda: suite con baño, tres habitaciones, un aseo y terraza.

El disseny prioritza l’orientació de les estances principals cap a l’espai interior comunitari enjardinat, afavorint la il·luminació natural i la qualitat dels espais. El nucli d’escales s’ha configurat per garantir també entrada de llum natural fins a la planta d’accés.