Inicio
Quiénes somos
Vivienda
Terciario
Energía y confort
Blog
Contacto
ca
es
Inicio
Quiénes somos
Vivienda
Terciario
Energía y confort
Blog
Contacto
ca
es
Inicio
>
Vivienda
>
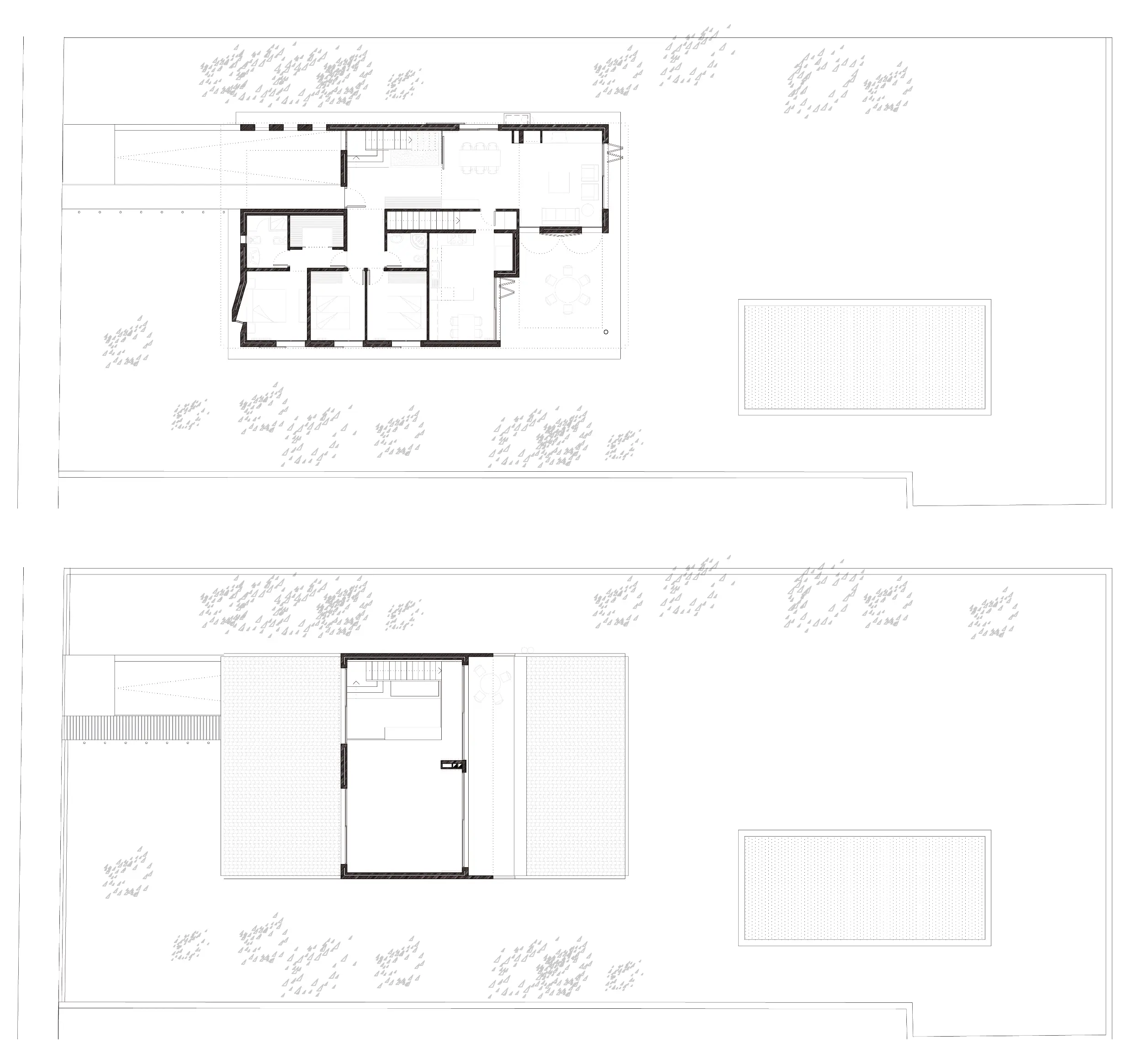
Vivienda unifamiliar en Cunit
Categoría
Vivienda
Vivienda unifamiliar en Cunit
Vivienda unifamiliar en Cunit
WhatsApp
Hola 👋
En què et podem ajudar?
Open Chat
Utilitzem cookies per garantir que us donem la millor experiència al nostre lloc web. Si continueu utilitzant aquest lloc, assumirem que us plau.
D'acord
Rebutjar
Política de privadesa