Categoría
Vivienda

Vivienda unifamiliar en Castellbisbal

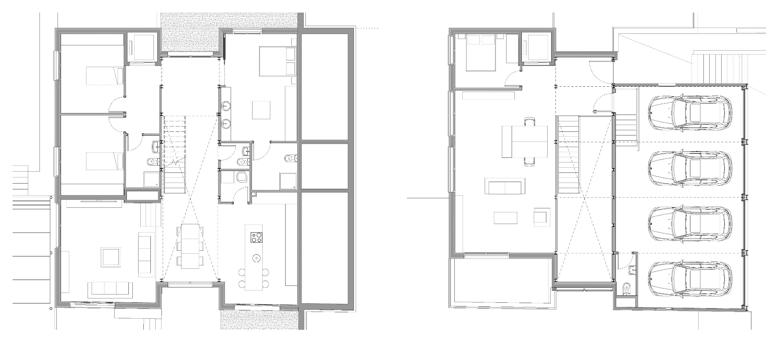
El proyecto corresponde a una vivienda unifamiliar situada en un solar rectangular con un desnivel aproximado de 5 metros, en el Vallès Occidental. La edificación, libre de antecedentes construidos, se implanta adaptándose a la topografía mediante un volumen escalonado de dos plantas.

El acceso principal se produce por el nivel superior, donde se dispone el parking con capacidad para cuatro coches, el recibidor, un estudio y un baño, concentrando los espacios más utilitarios. En la planta inferior se sitúan los principales espacios domésticos —cocina, salón-comedor, tres dormitorios dobles, vestidor y tres baños— abiertos visual y funcionalmente hacia el jardín posterior con piscina.

La fragmentación ortogonal de la planta estructura el proyecto y permite organizar el programa en niveles decalados, favoreciendo la relación con el exterior. Los espacios libres se articulan con pérgolas y zonas de ocio sin obstáculos, potenciando la continuidad entre interior y exterior y aprovechando el desnivel natural del terreno.