Categoría
Terciario

Centro de Interpretación del Río Ebro (Aldover)

El Proyecto Constructivo del Centro de Interpretación del Río Ebro en Aldover deriva del Proyecto Informativo “Centros de Interpretación del Río Ebro e Integración Ambiental de Áreas de Ocio en la Ribera del Río (Tarragona)”, impulsado por la Confederación Hidrográfica del Ebro y sometido a información pública mediante resolución publicada en el BOE. 177 de 26 de julio de 2006. Al no presentarse alegaciones, se procedió a la redacción de los proyectos constructivos individuales sin modificaciones substanciales respecto al planteamiento inicial.

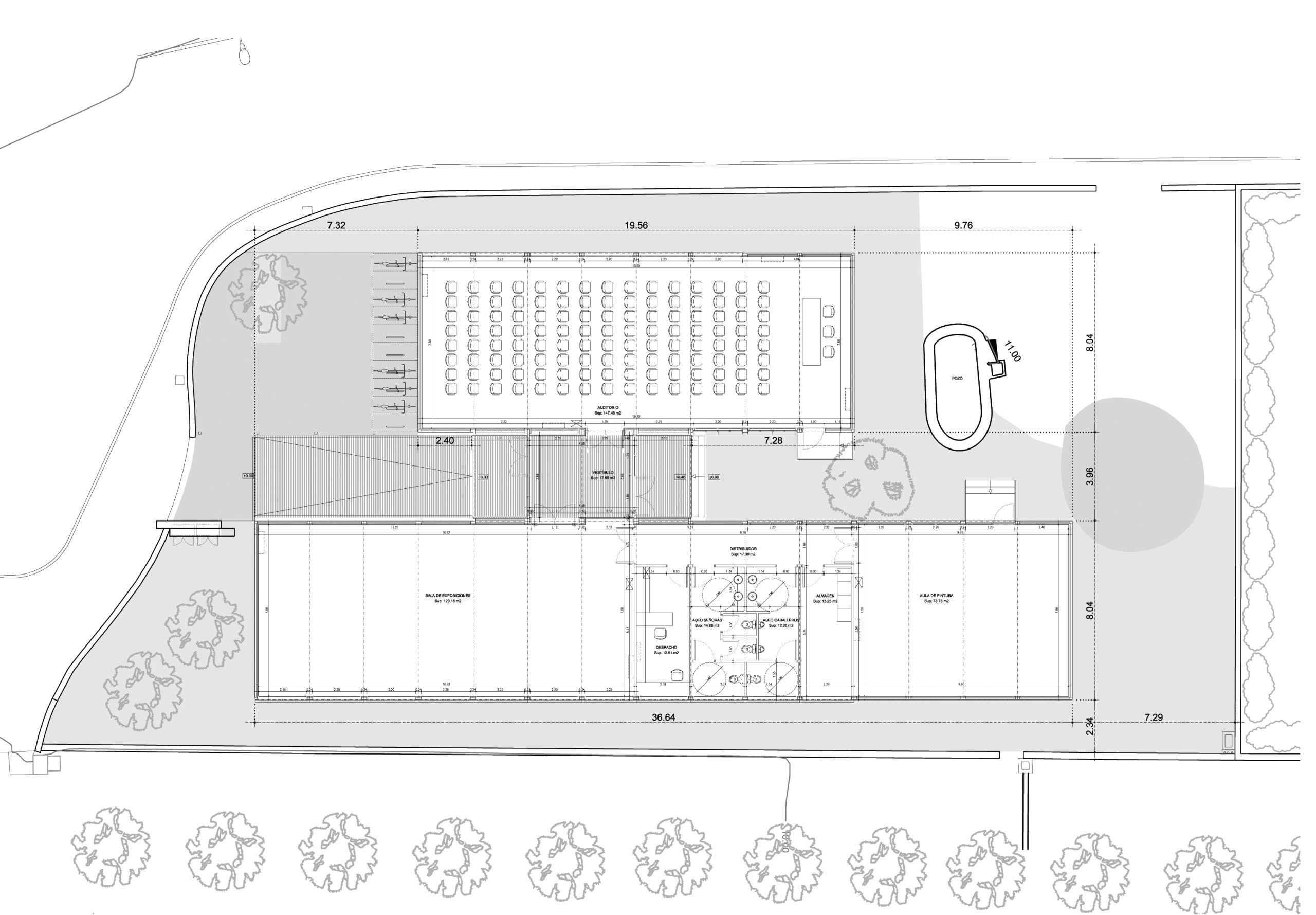
El edificio es de nueva planta y se organiza en dos volúmenes diferenciados unidos por un módulo de acceso acristalado:

  • Un primer cuerpo destinado a auditorio.
  • Un segundo cuerpo que alberga la sala de exposiciones y los espacios complementarios (aula de pintura, almacén, despacho y servicios).

El auditorio dispone de capacidad para 120 personas y pantalla para proyecciones audiovisuales. El vestíbulo de acceso, flanqueado por dos porches, articula la conexión entre ambos cuerpos.

Constructivamente, el edificio se resuelve mediante un sistema modular prefabricado basado en contenedores adosables con estructura de acero laminado. Este sistema industrializado permite una rápida ejecución, posibilita el desmontaje y minimiza la generación de residuos. Exteriormente, se propone un revestimiento ligero de lamas de madera de ipe que integra volumétricamente el edificio en el entorno preurbano.

La ordenación del conjunto establece un recorrido que conecta el acceso desde la calle Major con el camino del río, atravesando el edificio y culminando en un espacio ajardinado posterior. Este espacio exterior combina los volúmenes construidos con elementos preexistentes -como la noria y el arbolado- generando un área complementaria vinculada a los equipamientos municipales.

La intervención exterior prevé:

  • Restauración y naturalización de la noria existente con señalización interpretativa.
  • Saneamiento y poda del arbolado existente, reforzado con nuevas plantaciones (almeces, fresnos y álamos).
  • Trasplante de un nogal existente.
  • Instalación de señalización direccional, pórtico de acceso y aparcamiento para bicicletas.

El discurso expositivo del centro se centra en el ecosistema del bosque de ribera, en relación a la playa fluvial de Aldover y su entorno natural, poniendo en valor los valores ambientales y paisajísticos del tramo del río Ebro en el municipio.