Categoría
Terciario

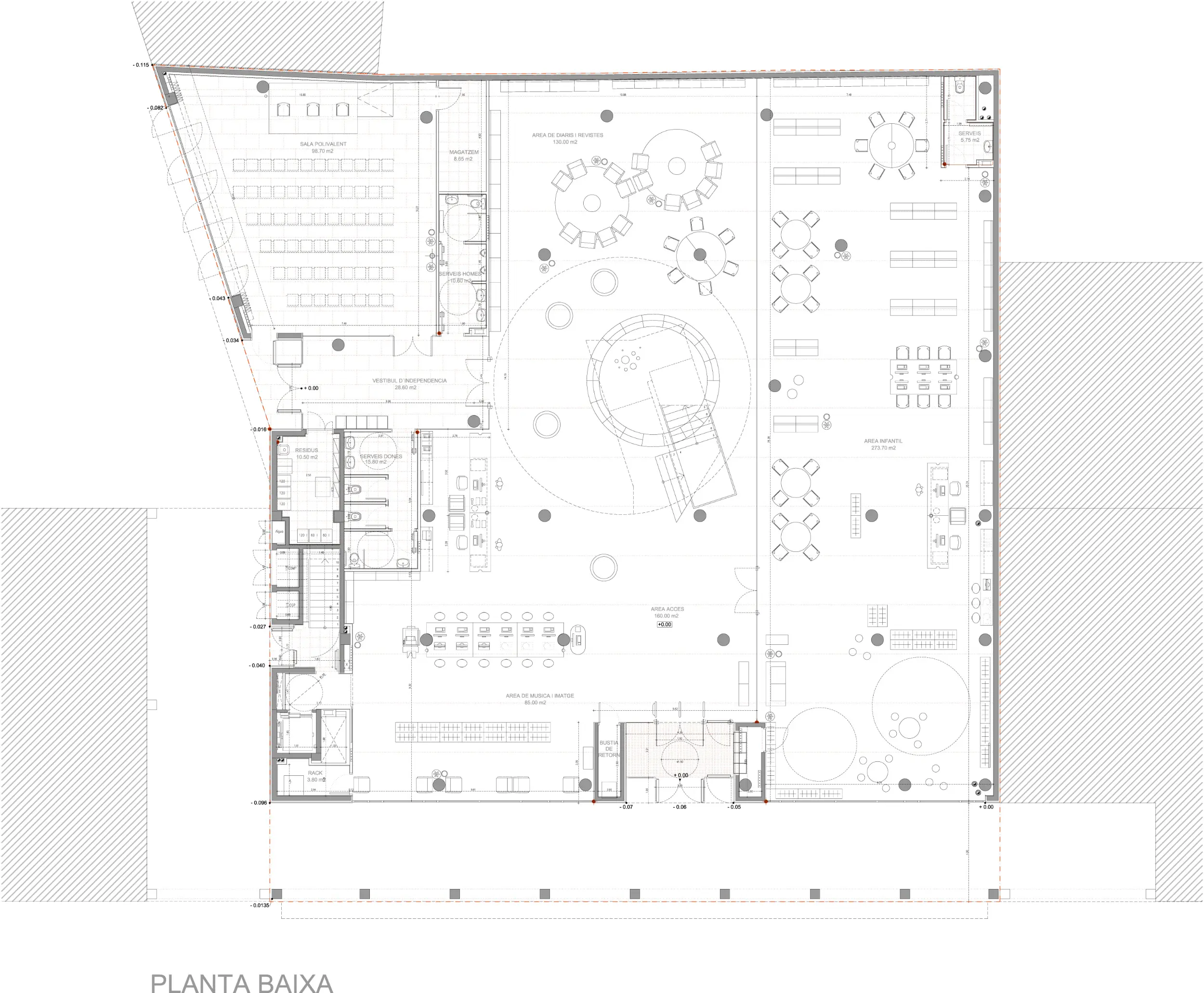
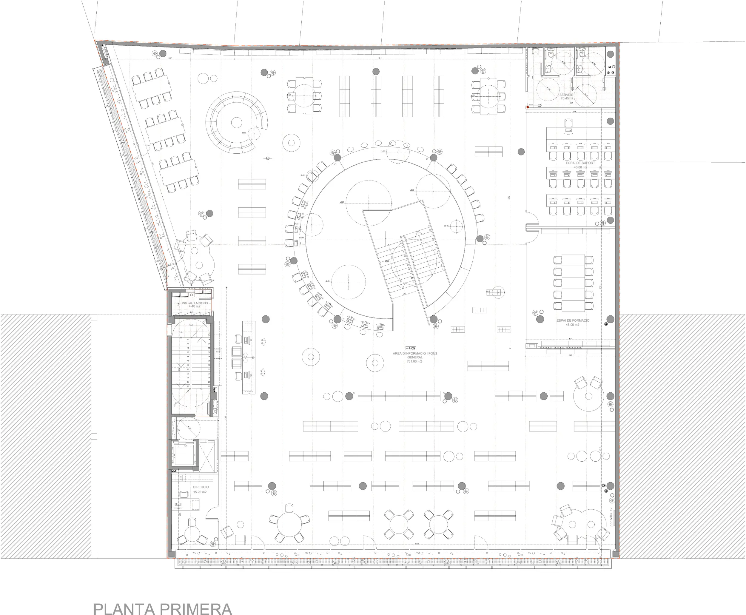
Biblioteca y Archivo municipal de Manlleu

Biblioteca y Archivo municipal de Manlleu

El edificio ha sido concebido con una estricta sensibilidad ambiental bajo unas premisas de ahorro energético y respeto por el medio ambiente para hacer de él un edificio eficiente que aproveche al máximo las posibilidades medioambientales del entorno. Un aparente orden aleatorio de la composición dinamiza la fachada convirtiéndola en un elemento identificador del proyecto, que más allá de cumplir su función bioclimática se traslada al interior para convertirse en un lenguaje formal

Estrategias para la reducción de la demanda y del consumo energético:

El proyecto parte de unas estrategias bioclimáticas que permiten reducir la demanda energética ya continuación diseñar sistemas de instalaciones y servicios de alta eficiencia para minimizar el consumo energético y tender a un edificio de cero emisiones.

Estas estrategias tienen como objetivo contribuir al diseño arquitectónico haciendo de la sostenibilidad y la eficiencia el lenguaje formal del edificio. Estas estrategias son:

-Aprovechamiento de la luz natural

La luz natural es por defecto un generador de arquitectura en el espacio. Empleando herramientas de simulación se consigue además conseguir una máxima eficiencia en el diseño y obtener datos para la implantación de los sistemas de control de la luz artificial

-Reducción de las pérdidas por transmisión

El factor de forma del edificio y el diseño de los cerramientos con un bajo coeficiente de transmisión minimizan las pérdidas energéticas por cerramientos. Destaca el diseño de la fachada de doble piel captora que actúa además como protección solar y recuperador de calor de aire.

-Reducción de las pérdidas por renovación de aire

La fachada de doble piel con orientación Este y Sur está diseñada para recuperar el calor generado en la cámara por efecto invernadero y apotrarlo en el sistema de renovación de aire reduciendo notablemente las pérdidas energéticas.

El sistema tiene la posibilidad de invertir el funcionamiento y evacuar el calor al esti

-Diseño y optimización de la protección solar

La fachada de doble piel dispone de protección solar en la cámara interior. Hay 2 tipos de protección. Una fija formada por los tubos captores diseñados para sombrear el plan de trabajo un mínimo de 2 horas antes de que el sol deje de incidir sobre la fachada y unos screens enrollables automatizados.

-Energías renovables

El sistema de climatización está a 4 tubos con producción de frío y calor por geotermia. Las unidades productoras se sitúan en cubierta y la disipación de calor se resuelve con 40 pozos geotérmicos enterrados de forma que el impacto de las unidades exteriores es mínimo

-Instalaciones eficientes y sistemas de control

El impacto visual del techo desde la calle hace plantear éste como una quinta fachada del edificio y por tanto la composición de las luminarias y los elementos de techo, difusores, lucernarios,… se concibe como una trama anisótropa que anule cualquier direccionalidad que pueda contraponerse a la verticalidad de los tubos de fachada.