Terciari

4RQ hem treballat en la redacció de projectes i direcció d’obra de diversos projectes d’equipaments, oficines i locals comercials tant en el sector públic com en el privat.

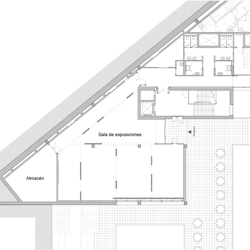
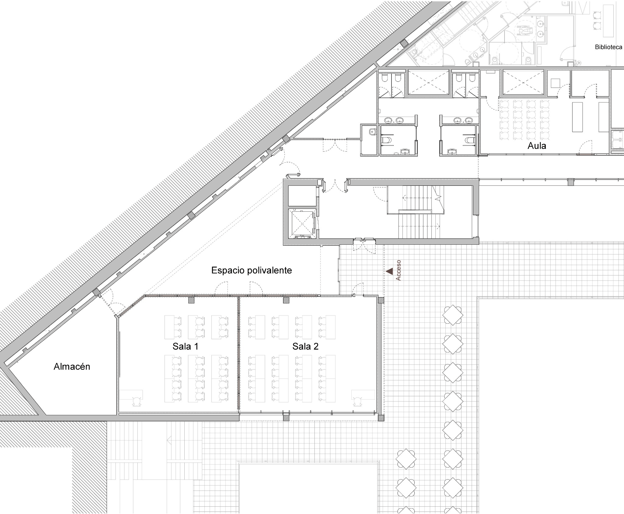
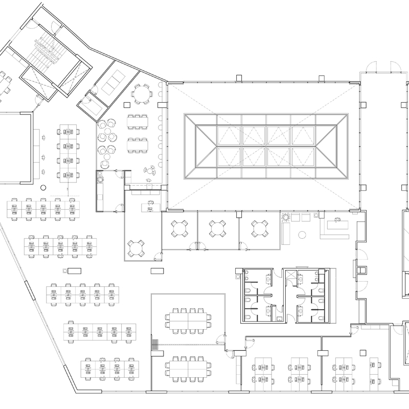
Espai CUB Museu del disseny Barcelona dHUB

Barcelona

Espai CUB Museu del disseny Barcelona dHUB

Barcelona

Espai CUB Museu del disseny Barcelona dHUB

Barcelona

Espai CUB Museu del disseny Barcelona dHUB

Barcelona

Espai CUB Museu del disseny Barcelona dHUB

Barcelona

Espai CUB Museu del disseny Barcelona dHUB

Barcelona

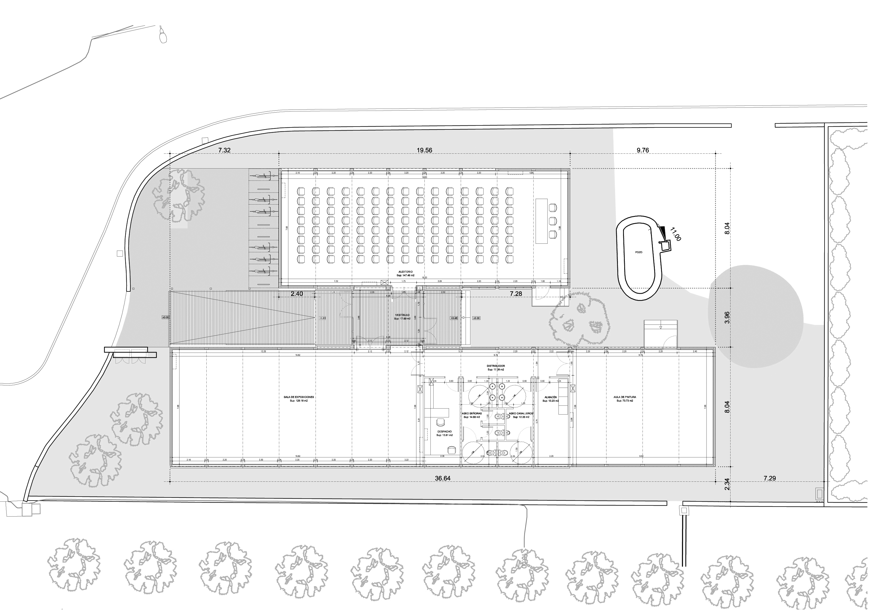
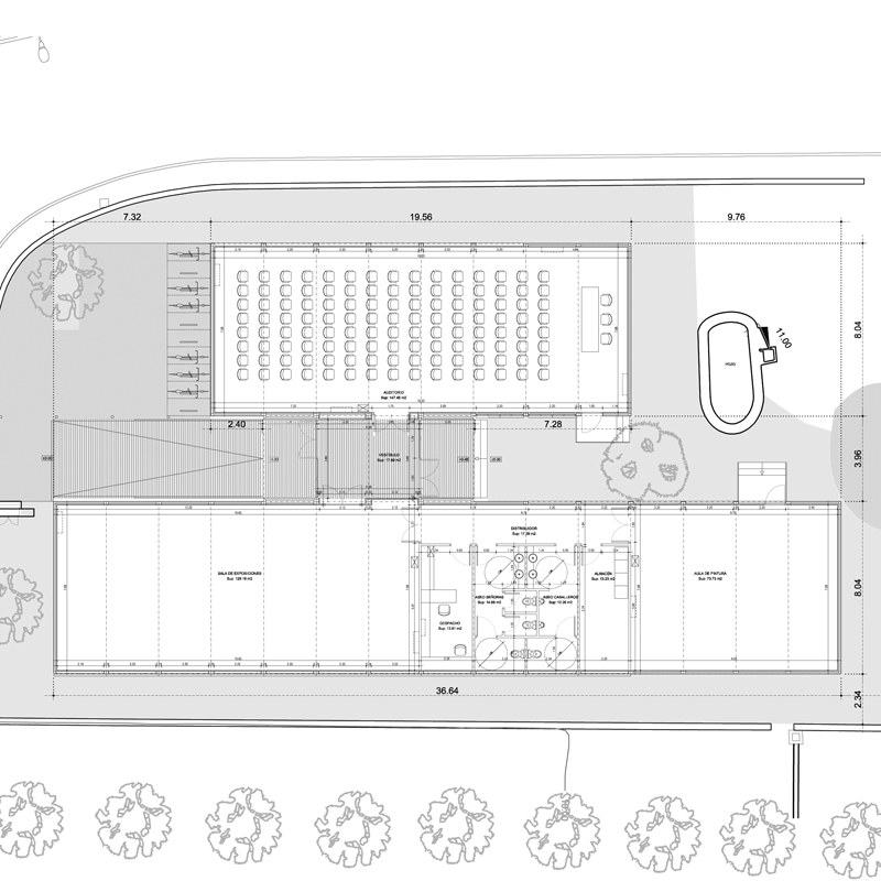
Ampliació CAP de Falset

Falset (Tarragona)
4RQ + MBM

Ampliació CAP de Falset

Falset (Tarragona)
4RQ + MBM

Ampliació CAP de Falset

Falset (Tarragona)
4RQ + MBM

Ampliació CAP de Falset

Falset (Tarragona)
4RQ + MBM

Ampliació CAP de Falset

Falset (Tarragona)
4RQ + MBM

Ampliació CAP de Falset

Falset (Tarragona)
4RQ + MBM

Espai d'innovació i aprenentatge actiu

Barcelona
4RQ + blossom

Espai d'innovació i aprenentatge actiu

Barcelona
4RQ + blossom

Espai d'innovació i aprenentatge actiu

Barcelona
4RQ + blossom

Reforma Façana Edifici Mediapro

Barcelona

Reforma Façana Edifici Mediapro

Barcelona

Reforma Façana Edifici Mediapro

Barcelona

Edifici D del Campus Besòs UPC

Barcelona
4RQ + MBM + SMF

Edifici D del Campus Besòs UPC

Barcelona
4RQ + MBM + SMF

Edifici D del Campus Besòs UPC

Barcelona
4RQ + MBM + SMF

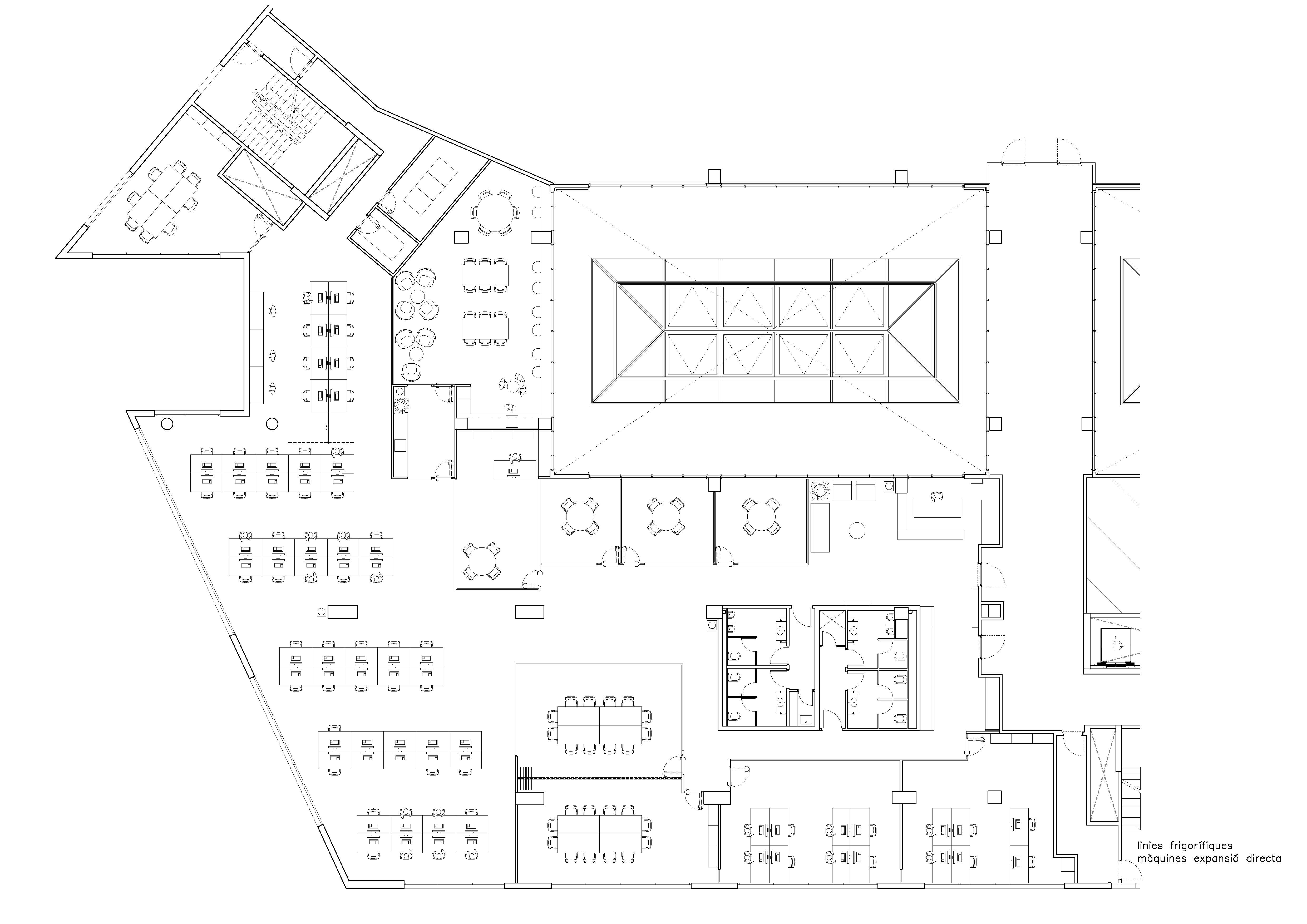
Oficines Centrals ERNI Consulting

Barcelona

Oficines Centrals ERNI Consulting

Barcelona

Oficines Centrals ERNI Consulting

Barcelona

Centre d'interpretació del riu Ebre

Aldover (Tarragona)

Centre d'interpretació del riu Ebre

Aldover (Tarragona)

Centre d'interpretació del riu Ebre

Aldover (Tarragona)

Reforma interior planta de triatge

Molins de Rei(Barcelona)

Reforma interior planta de triatge

Molins de Rei(Barcelona)

Reforma interior planta de triatge

Molins de Rei(Barcelona)

Biblioteca Municipal

Manlleu (Barcelona)

Ampliació ZEM Jaume Tubau

Sant Cugat del Vallès (Barcelona)

Centre d'Innovació

Sabadell (Barcelona)

Magatzem municipal

Prats de Rei (Barcelona)

Centre Cívic Sant Roc

Santa Coloma de Cervelló

Seu de LITEXCO BCN

Barcelona
Col·laboració amb Llorenç Miquel

Centre d'interpretació del riu Ebre

Mora d'Ebre (Tarragona)

Reforma de la zona de públic de la terminal de Transmediterranea

Port de Barcelona

Centre Cívic Casal de la Quintana

Talamanca (Barcelona)

Centre d'interpretació de la Tortuga Mediterrània

Marçà (Tarragona)
LOGO
  • Inici
  • Qui Som
  • Habitatge
  • Terciari
  • Energia i Confort
  • Serveis
  • Contactar