PROMOTOR

INCASOL

AUTORS

4RQ arquitectura + MBM Arquitectes + SMF Arquitectos

Categoria
Habitatge

38 Habitatges socials i CAP al barri del Carme a Reus

Concurs INCASOL. 3r premi

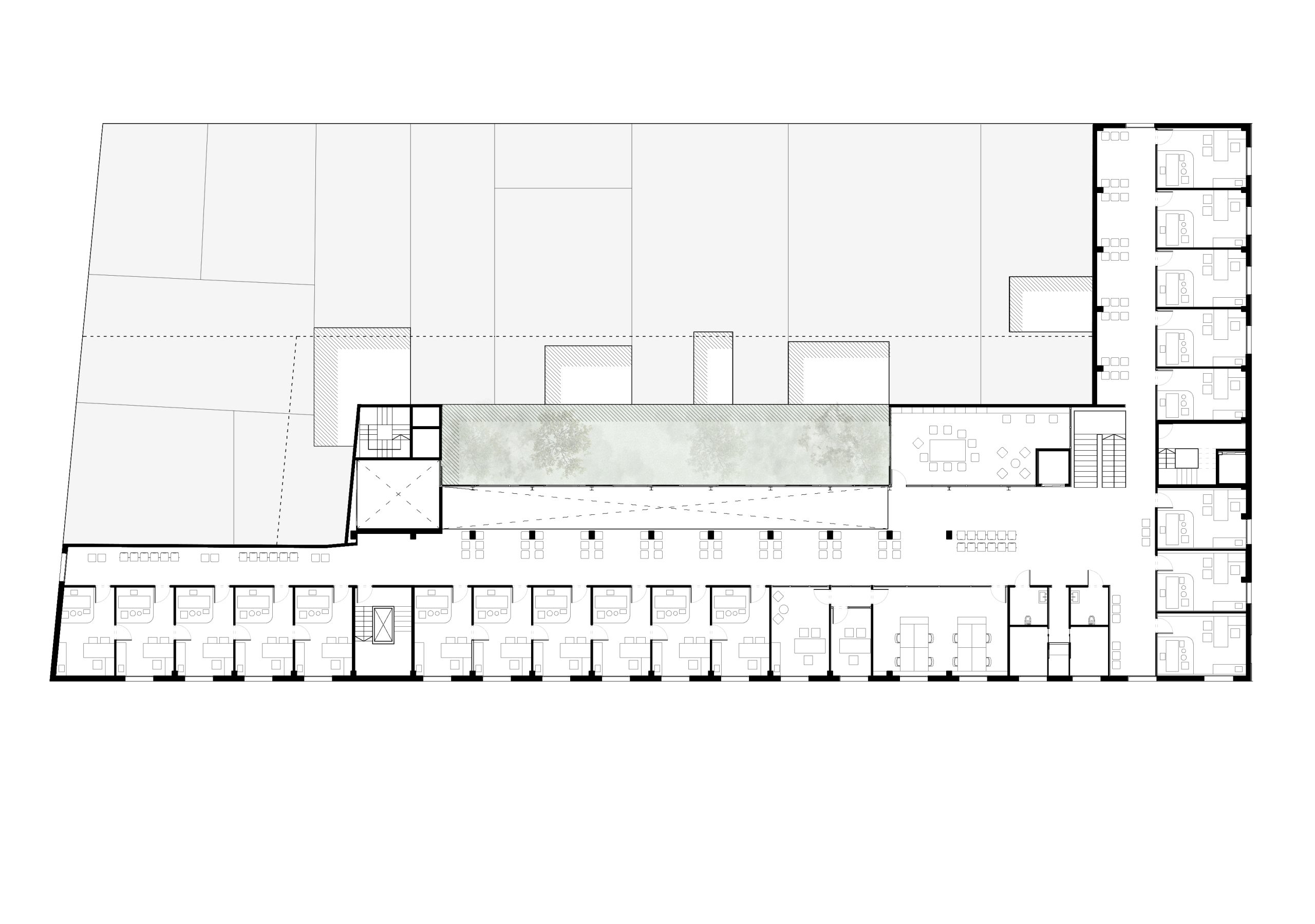
La proposta planteja un nou conjunt d’ús mixt al nucli antic de Reus que integra habitatge social, un Centre d’Atenció Primària (CAP), aparcament soterrat i espai públic, amb l’objectiu de generar una nova centralitat urbana i reforçar la vida comunitària.

El projecte es concep com una peça compacta i permeable que dialoga amb l’entorn existent mitjançant una arquitectura contemporània que reinterpreta la identitat del lloc. La planta baixa té un paper clau en aquesta relació, amb una plaça semicoberta que amplia la vorera i esdevé un espai de trobada vinculat al CAP i al sistema d’espais públics.

Funcionalment, l’edifici s’organitza amb l’aparcament al soterrani, el CAP a les plantes inferiors i els habitatges a les plantes superiors. Un pati interior lineal articula el conjunt, aportant llum natural, ventilació creuada i qualitat ambiental tant als espais assistencials com als residencials.

La proposta aposta per un sistema constructiu industrialitzat i eficient, combinant estructura de formigó a les plantes inferiors amb fusta contralaminada (CLT) als habitatges, reduint el pes, els temps d’execució i la petjada de carboni.

Des del punt de vista ambiental, el projecte es basa en estratègies passives com la compacitat, l’orientació i la ventilació natural, complementades amb instal·lacions d’alta eficiència com l’aerotèrmia i la ventilació amb recuperació de calor. La coberta incorpora una instal·lació fotovoltaica per a l’autoconsum, mentre que la gestió de l’aigua i la vegetació contribueixen a millorar el microclima i reduir el consum de recursos.

El resultat és un edifici sostenible, flexible i integrat, que combina qualitat arquitectònica, eficiència energètica i vocació social per contribuir a la regeneració urbana de l’entorn.