Categoría
Vivienda

Vivienda unifamiliar en Cerdanyola del Vallès

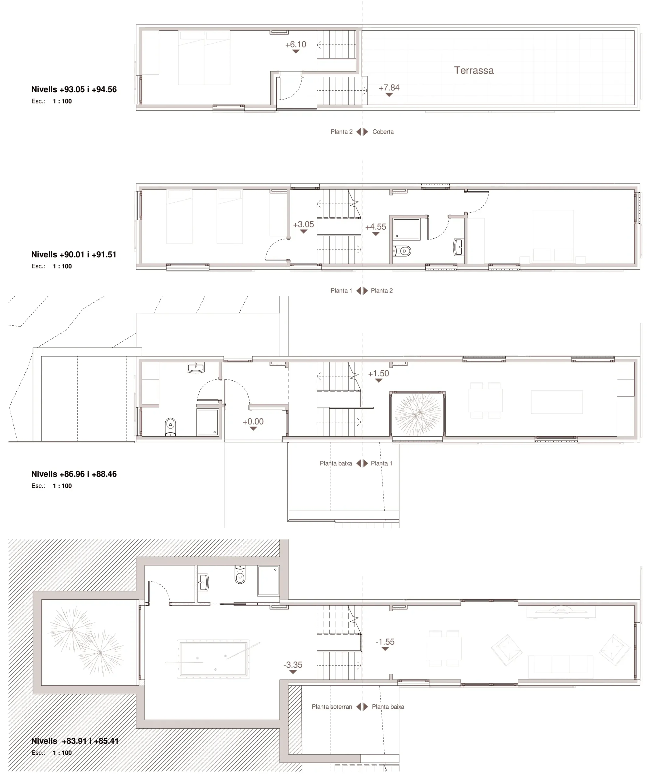
Vivienda unifamiliar de traza estrecha y profunda, acondicionada por las dimensiones reducidas de la parcela. Una vez respetadas las separaciones obligatorias en los límites establecidos por la normativa, solo quedaban 3 m de crujía para implantar la vivienda. El proyecto sitúa la escalera en el centro de la composición, convirtiéndola en el elemento vertebrador de la casa y en su pieza arquitectónica más representativa.

La propuesta se concibe desde la sección para dar respuesta al desnivel del solar. La escalera organiza la circulación vertical mediante medias plantas decaladas, donde cada tramo conecta con un uso específico. Este sistema genera una secuencia espacial dinámica, con relaciones visuales transversales que aportan continuidad y fluidez entre los diferentes ámbitos, preservando su privacidad.

La zona de día se orienta hacia la parcela inferior, abriéndose a las vistas y optimizando la entrada de luz natural y soleamiento gracias a su orientación favorable. La zona de noche, en cambio, se ubica en la fachada norte, favoreciendo un ambiente más recogido y confortable.